130㎡新中式设计案例 每一处设计都诗意又实用
发布时间:2022-04-07
1117次家是承载生活的容器,更是心灵的栖息之地。不凡的设计将艺术融于生活,赋予日常起居和谐与舒适的同时,更能凸显居者自信笃定的灵魂姿态。

(图片来源:玛格全屋定制供稿,侵删)
本期案例屋主为三口之家,夫妇二位皆为教师,青睐诗意淡雅的居住氛围,儿子已成年,需要独立生活空间。设计师运用当代设计技巧,将需求与艺术巧妙融合,最终营造出从起居到休闲、休憩的生活与艺术双动线,赋予空间欢欣愉悦的居家氛围。
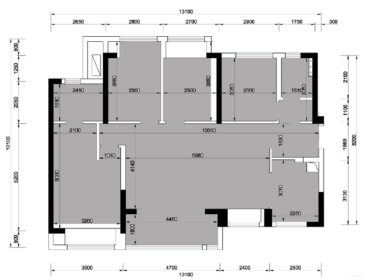
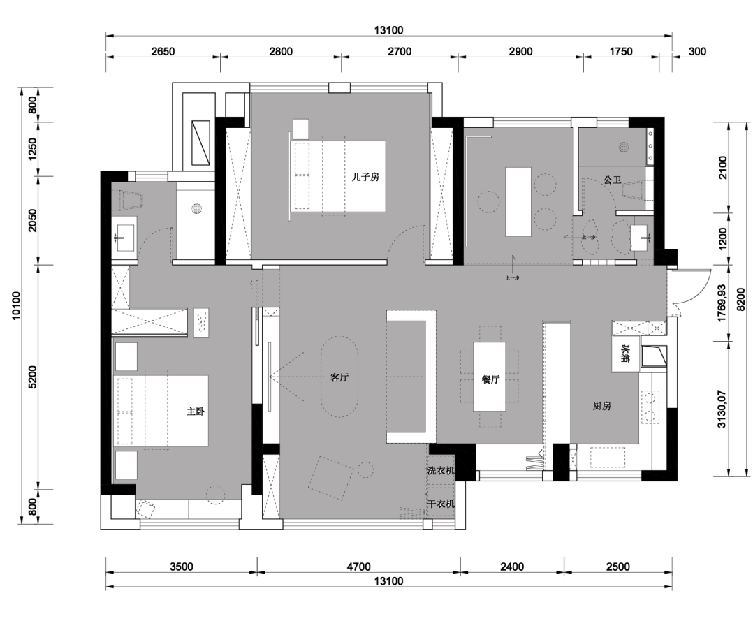
户型布局

(图片来源:玛格全屋定制供稿,侵删)
地址|重庆·万科重庆天地
户型|四室两厅两卫130㎡
风格|新中式
系列|集美Ⅱ系列
门型|JM06
颜色|银白灰
材质|玛格F☆☆☆☆颗粒免漆板
设计亮点

(图片来源:玛格全屋定制供稿,侵删)
Before

(图片来源:玛格全屋定制供稿,侵删)
After
1.整墙鞋柜内凹留出置物台,恰到好处的内嵌氛围灯营造归家仪式感
2.餐厅与厨房隔而不断,可折叠窗的设计增加厨房的实用性与通透感
3.阳台入厅做书房,开放式书架摆放书籍与艺术品,屋主品位与修养尽显其中
玄关
舒适实用,谱写归家序章

(图片来源:玛格全屋定制供稿,侵删)

(图片来源:玛格全屋定制供稿,侵删)
顶天立地的鞋柜,高低合适的置物台,隐藏式换鞋凳......舒适实用感藏在每一处小设计中。
品牌排行榜
月度热门榜
为您甄选最适合的项目
今天已有98人填写加盟信息
10秒即可快速提交加盟信息